3 bedroom apartment | Aviatorilor area


  • 2 Bedrooms
  • 2 Baths
  • 0 sqm built
Description

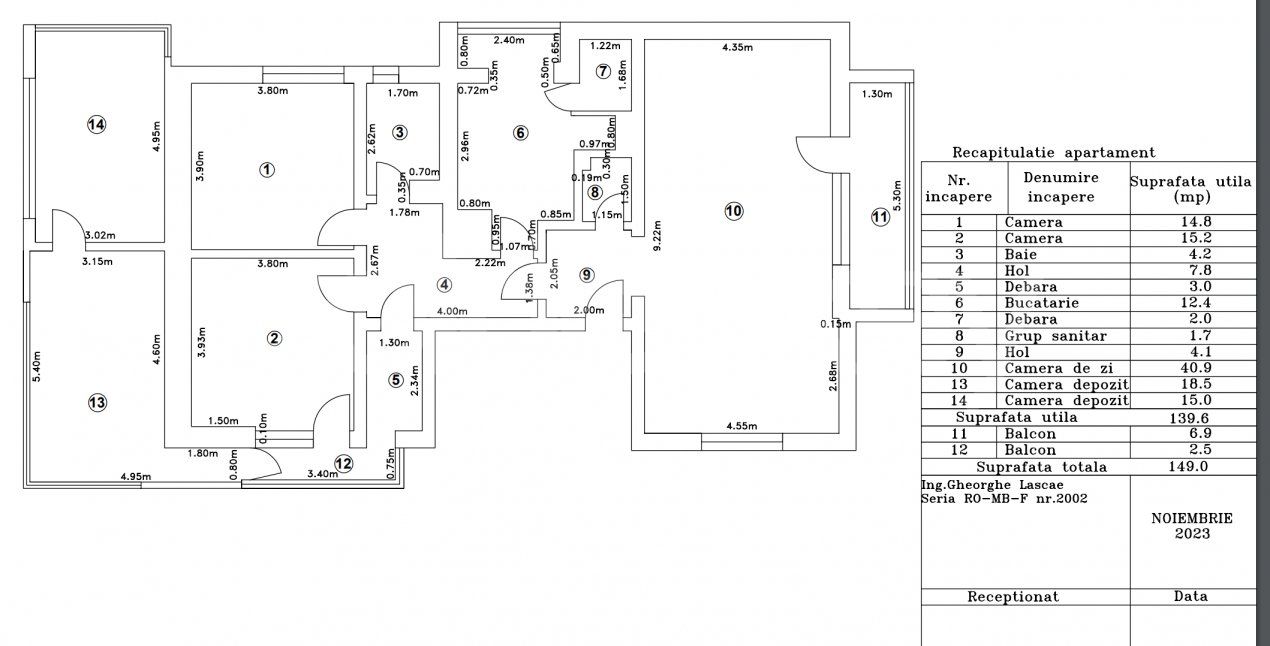
3 bedroom apartment available for rent, in an exclusive building with only 4 housing units, built in 1977. Located on the 2nd floor of 3, the apartment was completely renovated in 2024 and offers a generous usable area of 117 sqm, plus an enclosed terrace of 18 sqm, a storage room of 15 sqm and 2 balconies.
The current partitioning includes: open space living room of 40 sqm (with the possibility of being reconfigured into two separate rooms, according to the original structure), kitchen, two bedrooms, two bathrooms.
The apartment is rented together with an underground parking space. Ideal for both residency and office activities.

Floor Plans
€ 2.000/month
  • 2776371, Dorobanti

    3 bedroom apartment | Aviatorilor area

Similar Properties


€ 1300/month+VAT
  • 1 Bedrooms
  • 2 Baths
  • 110 sqm

Located in Dorobanti area between Radu Beller Street and Calea Floreasca, this 1 bedroom apartment is on the 3st floor of a building Ug+Gf+4 building. It has a built area of 110sqm, 80sqm usable... Read more

€ 950/month
  • 0 Bedrooms
  • 1 Baths
  • 74 sqm

Located in Dorobanti area, this 2 rooms apartment is on the 2nd floor of an Ug+Gf+5 completed in 2013. It has a built area of 74sqm of which 64sqm usable. It consists of 2 rooms and 1 bathroom and... Read more

€ 750.000
  • 5 Bedrooms
  • 4 Baths
  • 432 sqm

Located in Dorobanti area, on a quiet street, very close to P-ta Dorobanti, but also to P-ta Floreasca, it is disposed on 4 levels Ug+Gf+1+Attic and was built in 2000. It has a built area of 450sqm... Read more